102 Northgate Drive Thomastown VIC
THE SEARCH IS OVER
Often sought, rarely found is the opportunity to secure a standalone office warehouse within this tightly held industrial pocket of Thomastown and within the highly sought after Northgate Drive precinct.
Suitable for that business owner looking to make their next move or the astute investor looking to capitalise on the property's potential, either way we are sure that this property will tick all the boxes.
Office Area: 77 m2*
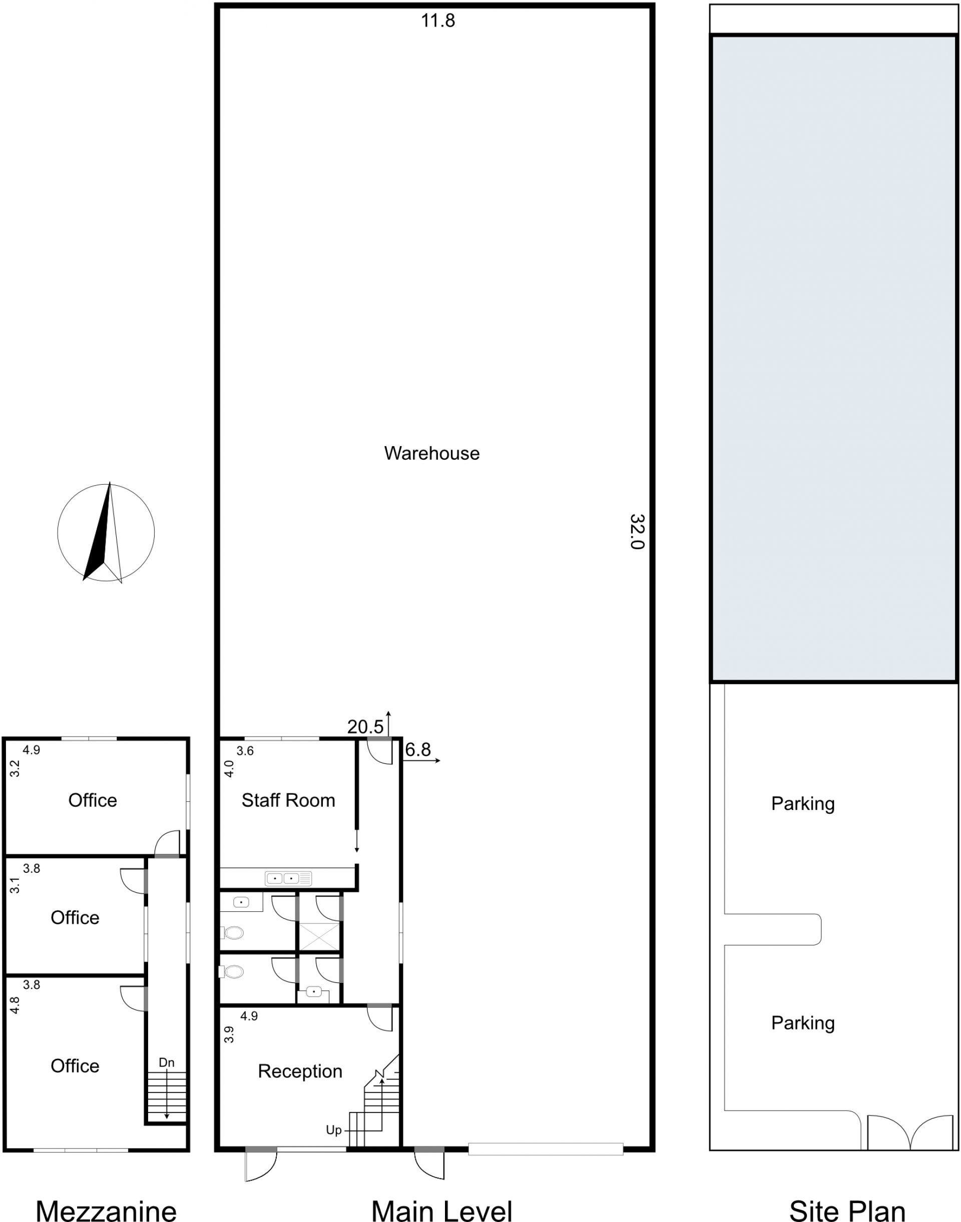
Warehouse Area: 357 m2*
Total Building Area: 434 m2*
Zoning: Industrial 1
Features Include:
Ground floor reception area
First floor office space
Kitchenette and amenities
Electric roller shutter door
High clearance warehouse
Onsite car spaces
Security fencing with gate
As properties such as this are rarely available for sale, why not arrange an inspection today?
*Approximately
Prices Exclude GST
Suitable for that business owner looking to make their next move or the astute investor looking to capitalise on the property's potential, either way we are sure that this property will tick all the boxes.
Office Area: 77 m2*
Warehouse Area: 357 m2*
Total Building Area: 434 m2*
Zoning: Industrial 1
Features Include:
Ground floor reception area
First floor office space
Kitchenette and amenities
Electric roller shutter door
High clearance warehouse
Onsite car spaces
Security fencing with gate
As properties such as this are rarely available for sale, why not arrange an inspection today?
*Approximately
Prices Exclude GST